• Facebook
  • Twitter
  • Linkedin
  • instagram

Member of logo apipro positivo

  • 23 day(s) ago
  • 168 views

60-4599-5 - Ibizan style villa project with license for sale in alcalali

€ 765.000,00 | 3 Habitaciones, 2 Baños, 419.00 sqmt

Descripción

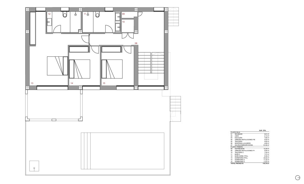
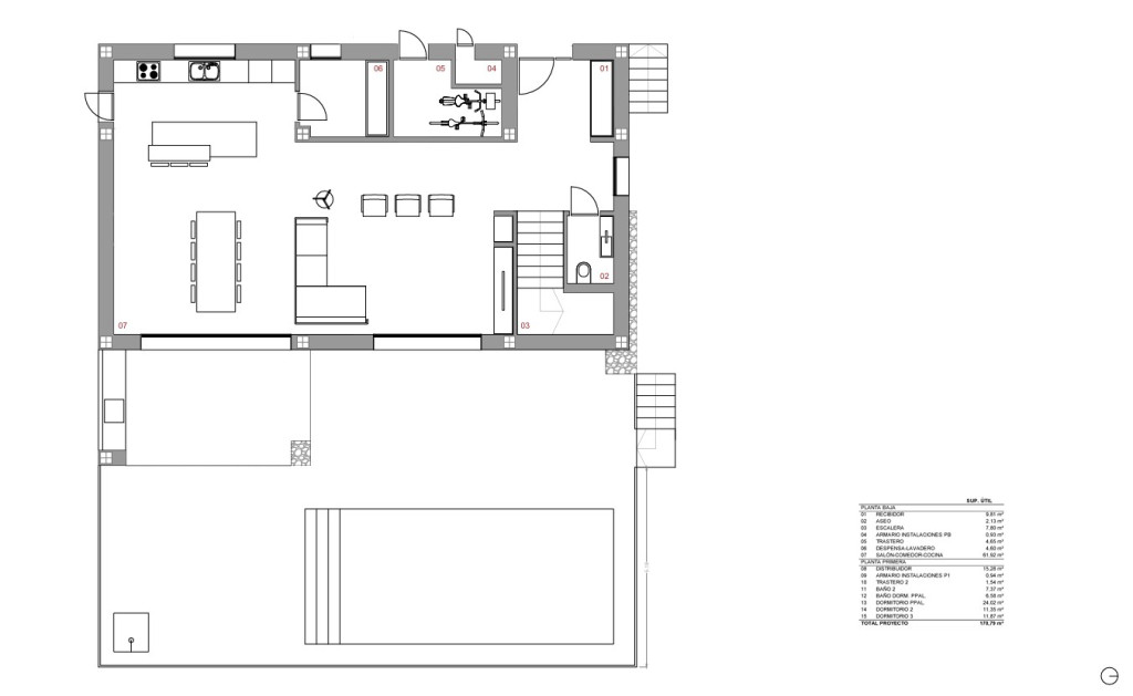
Situado en el idílico pueblo de Alcalalí, se encuentra este nuevo proyecto de construcción con licencia de obras concedida. Con una superficie construida prevista de 211 m2 en una generosa parcela de 1.021 m2, este proyecto ofrece la oportunidad de construir una preciosa villa de estilo ibicenco en el tranquilo entorno natural del valle de Jalón.

El proyecto prevé una villa que se construirá en dos plantas. En la planta baja se ha previsto un amplio salón-comedor con cocina abierta equipada con isla, complementada con una despensa, un trastero y un aseo de invitados. La planta superior está diseñada con tres cómodos dormitorios y dos elegantes cuartos de baño que combinan funcionalidad y estética, uno de ellos en suite. La distribución del proyecto ha sido cuidadosamente estudiada para garantizar un aprovechamiento óptimo del espacio y crear un flujo natural entre las diferentes zonas de la vivienda.

Además, el jardín privado está diseñado para disfrutar al máximo del aire libre y la naturaleza con total privacidad, así como dos terrazas donde se puede disfrutar del clima mediterráneo durante todo el año.

También hay una piscina de 8 x 4 metros, ideal para refrescarse durante los calurosos meses de verano. Las zonas exteriores constarán de una terraza abierta y otra cubierta, para poder elegir entre sol y sombra. La parcela estará completamente vallada, lo que garantiza la seguridad y la tranquilidad, mientras que la buena conexión con las principales carreteras cercanas garantiza un fácil acceso a los servicios y lugares de interés locales.

La villa estará equipada con aire acondicionado para calefacción y refrigeración a través de conductos de aire, lo que creará un clima interior agradable en todas las estancias, independientemente de la estación del año. El doble acristalamiento, las persianas automáticas en los dormitorios y las plazas de aparcamiento y el trastero previstos contribuyen a un mayor confort en el hogar.

Este proyecto no solo representa la realización de una vivienda, sino un estilo de vida en el que la tranquilidad, el confort y el lujo moderno se unen en la encantadora Alcalalí. Con su arquitectura contemporánea y sus cuidadas instalaciones, este proyecto es una invitación a disfrutar cada día de un entorno excepcional donde el tiempo parece haberse detenido.

 Compartir

Facebook   Tweet

 Características

Base Information

Cama
3
Baño
2
Metro cuadrado
419.00 sqmt

Land Information

Pies o metros cuadrados
419 sqmt
Tamaño del Terreno
1021 sqmt

Servicios

Comodidades Generales

Trastero
Electric Shutters

Servicios comunitarios

Jardín

Servicios de ahorro de energía

Doble acristalamiento

Servicios exteriores

Terrace
Swimming Pool
Automatic irrigation

Comodidades interiores

Aire acondicionado

Servicios de seguridad

Automatic Gate

 Ubicación

 Comentarios

Sin comentarios
Añadir comentario
Location
Facilities
Value for money
Cleanliness
Por favor, introduzca los símbolos de la imagen en campo de abajo.
     

  Detalles Solicitar más

Por favor, introduzca los símbolos de la imagen en campo de abajo.

Client Testimonials

Address

Javea Estates
Calle Thiviers 6, Puerta 11

03730 Jávea

+34 960 130 339